Wejherowo, I Brygady Pancernej Wojska Polskiego
5 000,00 PLN
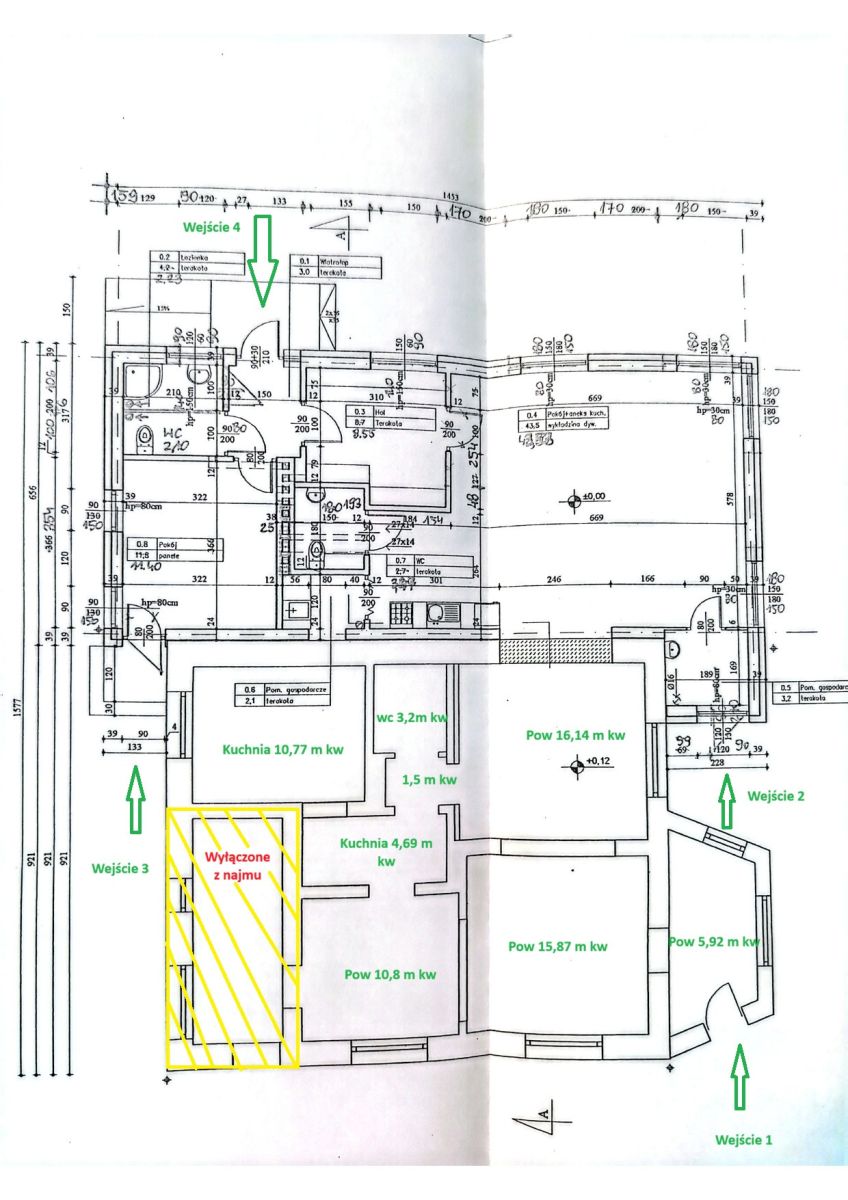
Biuro na wynajem , 148 m2
33,78 PLN /m2
Powierzchnia
148 m2
Liczba pokoi
6
Rok budowy
2009

Dane nieruchomości:

Numer oferty: HEW905388
Powierzchnia: 148 m2
Liczba pokoi: 6
Piętro/Pięter 0 z 1
Rok budowy: 2009
Ogrzewanie: pompa ciepła
Cena za m2: 33,78 PLN
Cena: 5 000,00 PLN

Opis nieruchomości:

Szukasz lokalu idealnego na żłobek, przedszkole, szkołę językową, gabinety lekarskie czy psychologiczne? Ten jasny, funkcjonalny lokal na parterze z dużymi oknami i aż 4 wejściami może być idealnym miejscem dla Twojej działalności!

Oferuję przestronny  lokal o powierzchni 148 m², położony na parterze budynku przy ul. Brygady Pancernej w Wejherowie. To miejsce o dużym potencjale, idealne zarówno dla działalności edukacyjnej, medycznej, jak i usługowej. 
Przez lata funkcjonował tu żłobek - lokal jest przystosowany do tego typu działalności; spełnia wymagania dla placówek opiekuńczych.

Atuty lokalu:
Parter z bezpośrednim dostępem - wygodne wejście dla klientów i osób o ograniczonej mobilności.
Aż 4 niezależne wejścia - możliwość podziału na mniejsze pomieszczenia lub osobne lokale, idealne dla kilku gabinetów.
Duże okna i jasne wnętrza - przyjemna, komfortowa przestrzeń.
Dostępne miejsca parkingowe. Aktualnie na terenie znajduje się plac zabaw, na którego miejscu będzie można parkować pojazdy.
Ogrzewanie pompą ciepła połączoną z fotowoltaika - ekologiczne i ekonomiczne rozwiązania obniżające koszty utrzymania.
Możliwość własnej aranżacji - elastyczny układ, który pozwala stworzyć przestrzeń dopasowaną do potrzeb.

Miejsce na twój baner lub reklamę - obiekt jest dobrze widoczny z głównej ulicy.

Układ wnętrza:
Dwie duże sale o powierzchni ok. 43 m² każda, które można łączyć w jedną przestronną salę.
Kuchnia z wydawką o powierzchni 16 m2
Dwie łazienki - funkcjonalne i wygodne.
Dodatkowa mniejsza salka o powierzchni 13m2- idealna na gabinet, biuro lub pomieszczenie do zajęć indywidualnych.
+ dwa wiatrołapy

Lokalizacja:
Bardzo dobry i łatwy dojazd.
Blisko przystanku autobusowego - świetna dostępność komunikacyjna.

Idealny na:
żłobek, przedszkole, salę zabaw,
gabinety lekarskie, fizjoterapię, psychologię, logopedię,
szkołę językową, biuro, firmę usługową,
lub inną działalność potrzebującą przestronnych i jasnych pomieszczeń.

Zapraszamy na prezentację!

Skontaktuj się z agentem :
Julia Pranczk

Telefon : 661580315

j.pranczk@hewelt.eu


Lokalizacja: