Luzino, Żołnierzy Niezłomnych
950,00 PLN
Lokal użytkowy na wynajem , 18,71 m2
51,00 PLN /m2
Powierzchnia
18,71 m2
Liczba pokoi
1
Rok budowy
2015

Dane nieruchomości:

Numer oferty: HEW485972
Powierzchnia: 18,71 m2
Liczba pokoi: 1
Piętro/Pięter 1 z 1
Rok budowy: 2015
Cena za m2: 51,00 PLN
Cena: 950,00 PLN

Opis nieruchomości:

LOKAL WOLNY OD PAŹDZIERNIKA 2025.R
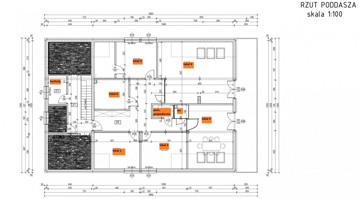
Oferujemy na wynajem lokal z pomieszczeniem gospodarczym o powierzchni 18,71m2 (13,81m2+ 4,9m2) , jest to jeden z 6 dostępnych lokali .
Lokal znajduje się na pierwszym piętrze budynku  w pobliżu Trasy Kaszubskiej w Luzinie przy ul. Żołnierzy Niezłomnych. Jest to doskonała okazja dla przedsiębiorców poszukujących przestrzeni w dobrej lokalizacji.

Lokalizacja, tuż przy nowo powstałej drodze łączącej Luzino i pobliskie miejscowości z Trójmiastem!
W zaledwie 30 min jesteś w stanie znaleźć się w Gdyni. 

Nasza oferta obejmuje wynajem całości lub poszczególnych pomieszczeń o różnych powierzchniach, od 13 m2 do 50 m2, co daje Państwu możliwość wyboru rozmiaru przestrzeni, która najlepiej spełnia Państwa potrzeby.
Poszczególne lokale; ( rzut kondygnacji w galerii zdjęć )
l1 13,44m2 -cena 700zł
l2 13,42m2 -cena 700zł
l3 24,5m2 lokal z balkonem - cena 1200zł
l4 43,38m2 lokal z balkonem - cena 1750 zł
l5 13,81m2+ 4,9m2= 18,71m2 -  cena 950 zł 
l6 9,49m2 pokój bez okna - cena 500zł 
l7 pomieszczenie gospodarcze 2,3m2- cena 100zł 
Całość (oddzielona, zamknięta część piętra) ok 170m2- cena  5 500 zł
Podane cenny to kwoty netto. 

Pomieszczenia są idealne dla różnych rodzajów działalności, w tym: księgowości, kosmetyczki, spedycji, gabinetów fizjoterapeutycznych, masażu, magazynu, sklepu internetowego, do pracy zdalnej, przygotowywania cateringów  i wielu innych....

Ceny wynajmu zależą od powierzchni i wynoszą od 40 zł/m2 do 50 zł/m2. Oferujemy konkurencyjne stawki, które są atrakcyjne zarówno dla małych firm, jak i większych przedsiębiorstw. Dodatkowo pobierane będą zaliczki na opłaty tj: woda, prąd czy ogrzewanie. Dzięki ogrzewaniu hybrydowemu koszty utrzymania lokali są niskie, wynoszą one 10 zł/m2 miesięcznie. 

Dodatkowym atutem naszej oferty są dostępne miejsca parkingowe, które ułatwią Państwu i Państwa klientom parkowanie. W lokalu znajduje się również wspólna kuchnia oraz łazienka, co zwiększa komfort użytkowania przestrzeni.
Istnieje możliwość umieszczenia reklam na balkonie/ ogrodzeniu bądź wykupienia reklamy na pylonie.

Jeśli szukają Państwo odpowiedniej przestrzeni dla swojego biznesu w dogodnej lokalizacji, to nasz lokal w Luzinie może być idealnym rozwiązaniem.

Warunki:
Umowa najmu na minimum rok.
Kaucja zwrotna wynosi dwukrotność miesięcznego czynszu najmu.


Zapraszamy do kontaktu, aby omówić szczegóły i ustalić terminy prezentacji.

Skontaktuj się z agentem :
Julia Pranczk

Telefon : 661580315

j.pranczk@hewelt.eu


Lokalizacja: